Prodaja / stan / Zvezdara / ID 42718
Vaš novi dom u srcu Mirijeva – moderan stambeno-poslovni kompleks, 2.5, 60,52m2
Bulbulder, Zvezdara, Beograd
133.144 €
TipStan
Struktura Dvoiposoban
Kvadratura 61 m2
Nameštenost Prazan
Spratnost 3 / 4
Grejanje EG
Stanje Novo
Dokumentacija Neuknjižen
Lođa
Lift
Video nadzor
Interfon
Klima

Na vrhu Mirijeva, u mirnom i zelenom okruženju, gradi se savremeni stambeno-poslovni kompleks koji donosi spoj udobnosti, kvaliteta i izuzetne povezanosti sa centrom Beograda. Ovaj ekskluzivni kompleks, projektovan po najvišim standardima, spratnosti 2 Po + Pr + 3 spr + povučeni sprat, prostire se na preko 16.000 m², obuhvatajući više lamela sa stambenim jedinicamaposlovnim apartmanima, lokalima, uz prostranu garažu od 2.700 m²

ODLIČNA LOKACIJA I DOBRA POVEZANOST

Kompleks je izdvojen od gradske buke, dok se svi ključni sadržaji - škole, vrtići, marketi i gradski prevoznalaze u neposrednoj blizini, a takođe je planirana izgradnja vrtića preko puta kompleksa, dok će ostali sadržaji biti prisutni i u samom kompleksu. Nalazi se na samo nekoliko minuta od Bulevara kralja Aleksandra, sa brzim izlaskom na auto-put, što omogućava jednostavan i efikasan pristup svim delovima grada. Blizina buduće metro stanice dodatno povećava dugoročnu vrednost vašeg ulaganja.

Kompleks je smešten na uzvišenju, u mirnom i zelenom okruženju, pružajući panoramski pogled na Beograd, dok ružа vetrovа osigurava stalnu cirkulaciju svežeg vazduha, stvarajući zdravu životnu sredinu.

MODERNA ARHITEKTURA I NAJKVALITETNIJI MATERIJALI

Posebna pažnja posvećena je izboru materijala i izvođenju radova:

  • Blindirana ulazna vrata – sigurnost na prvom mestu
  • Sedmokomorna stolarija sa komarnicima i roletnama – savršena termo i zvučna izolacija
  • Italijanska keramika i sanitarije – moderan dizajn i dugotrajnost
  • Smart sistem – pametna kontrola rasvete, grejanja i sigurnosnih sistema
  • Podno grejanje i radijatori – vrhunska energetska efikasnost
  • Fasada od kamene vune i stiropora debljine 15 cm – vrhunska termoizolacija

JEDINSTVENA INVESTICIONA PRILIKA

  1. Cena stanova u pretprodaji: 2.200 €/m² sa PDV-om
  2. Mogućnost povrata PDV-a za kupce prvog stana
  3. BEZ PROVIZIJE ZA KUPCE
  4. Garažna mesta dostupna po ceni od 18.000 € sa PDV-om

Rok završetka radova: decembar 2026. godine. Stepen izgrađenosti u ovom trenutku nije dovoljan za kupovinu na kredit.

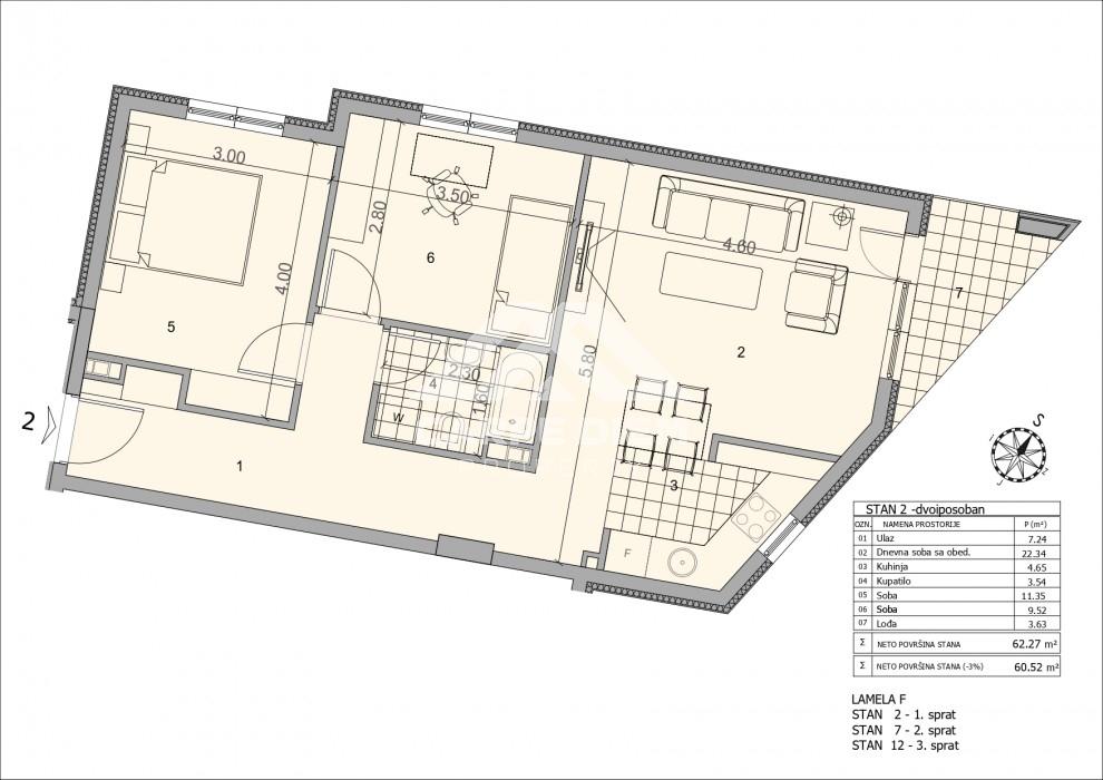
U ponudi je veći broj stanova različitih struktura i površina. Predstavljamo Vam dvoiposoban stan lociran na trećem spratu lamele F, površine 60,52m2. Prostorije: ulazni hol, dnevni boravak sa trpezarijom, kuhinja, dve spavaće sobe, kupatilo, lođa. U navedenu cenu je uračunat PDV. 

Rezervišite svoj stan na vreme i budite deo budućnosti savremenog stanovanja!

Ukoliko ste zainteresovani za ovu nekretninu, slobodno nas kontaktiraje putem telefona ili maila.

2026. Sva prava zadržana. Carpe Diem Property
Ovaj sajt koristi "kolačiće" kako bi se obezbedilo bolje korisničko iskustvo. Ako želite da blokirate "kolačiće", molimo podesite svoj pretraživač.