Prodaja / stan / Novi Beograd / ID 42798
Savremena novogradnja na Vračaru - Gospodara Vučića, 4.0, 84,05m2
Ada Medjica, Novi Beograd, Beograd
315.188 €
TipStan
Struktura Četvorosoban
Kvadratura 84 m2
Nameštenost Prazan
Spratnost 4 / 7
Grejanje CG
Stanje Novo
Dokumentacija Neuknjižen
Lođa
Lift
Garaža

Na izuzetnoj lokaciji na Vračaru, u mirnoj ulici, a u neposrednoj blizini svih ključnih gradskih tačaka, gradi se savremena stambena zgrada namenjena onima koji žele kvalitet, funkcionalnost i dugoročnu vrednost. Blizina Autokomande omogućava odličnu saobraćajnu povezanost sa centrom grada i ostalim delovima Beograda, dok se u okruženju nalaze prodavnice, kafići, restorani, škole, vrtići i linije javnog prevoza.

Savremena novogradnja sa fokusom na kvalitet

Zgrada spratnosti P+6+PS projektovana je sa jasnim akcentom na komfor, trajnost i estetiku. Trenutno je u izgradnji, sa planiranim završetkom gradnje sredinom 2027. godine, što budućim vlasnicima pruža mogućnost pravovremenog planiranja i izbora.

Tehničke i materijalne karakteristike:

  • Grejanje: daljinsko (toplane), radijatori
  • Hlađenje: klima uređaji
  • Ulazna vrata: Bosalova
  • Liftovi: Otis
  • Auto-liftovi: nemačke proizvodnje
  • Podne obloge: parket I klase
  • Sanitarija i keramika: visokokvalitetna, I klasa

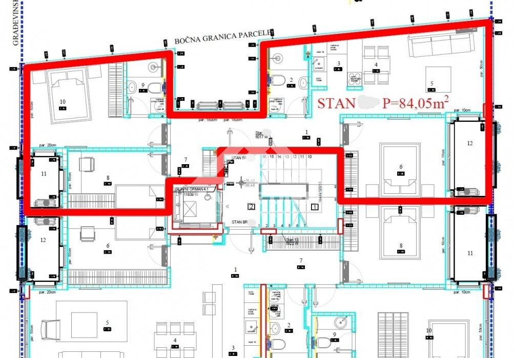
Četvorosoban stan – 84,05 m² funkcionalno osmišljenog prostora

Predstavljamo vam četvorosoban stan na četvrtom spratu, idealan kako za život, tako i kao investiciju.

Struktura stana:

  • dnevni boravak sa trpezarijom
  • kuhinja
  • 3 spavaće sobe
  • 2 kupatila
  • 2 hodnika
  • 2 lođe

Prostor je racionalno organizovan, sa jasnim zonama za život i odmor, uz maksimalno iskorišćenje kvadrature.

Dodatne informacije

  • Garažna mesta dostupna po ceni od 25.000 € + PDV
  • Na cenu stanova se dodaje PDV

Ukoliko tražite kvalitetnu novogradnju na Vračaru, sa pouzdanim tehničkim rešenjima i odličnom lokacijom – ovo je prilika koju vredi razmotriti.

Kontaktirajte nas za više informacija, dostupnost stanova i zakazivanje prezentacije projekta.

Ukoliko ste zainteresovani za ovu nekretninu, slobodno nas kontaktiraje putem telefona ili maila.

2026. Sva prava zadržana. Carpe Diem Property
Ovaj sajt koristi "kolačiće" kako bi se obezbedilo bolje korisničko iskustvo. Ako želite da blokirate "kolačiće", molimo podesite svoj pretraživač.